RENOVATED GROUND FLOOR WITH PRIVATE PATIO FOR SALE, EL TERRENO, PALMA
Welcome to this charming and completely renovated ground-floor apartment, featuring a private entrance and a sunny patio in one of Palma’s most sought-after neighbourhoods — El Terreno.
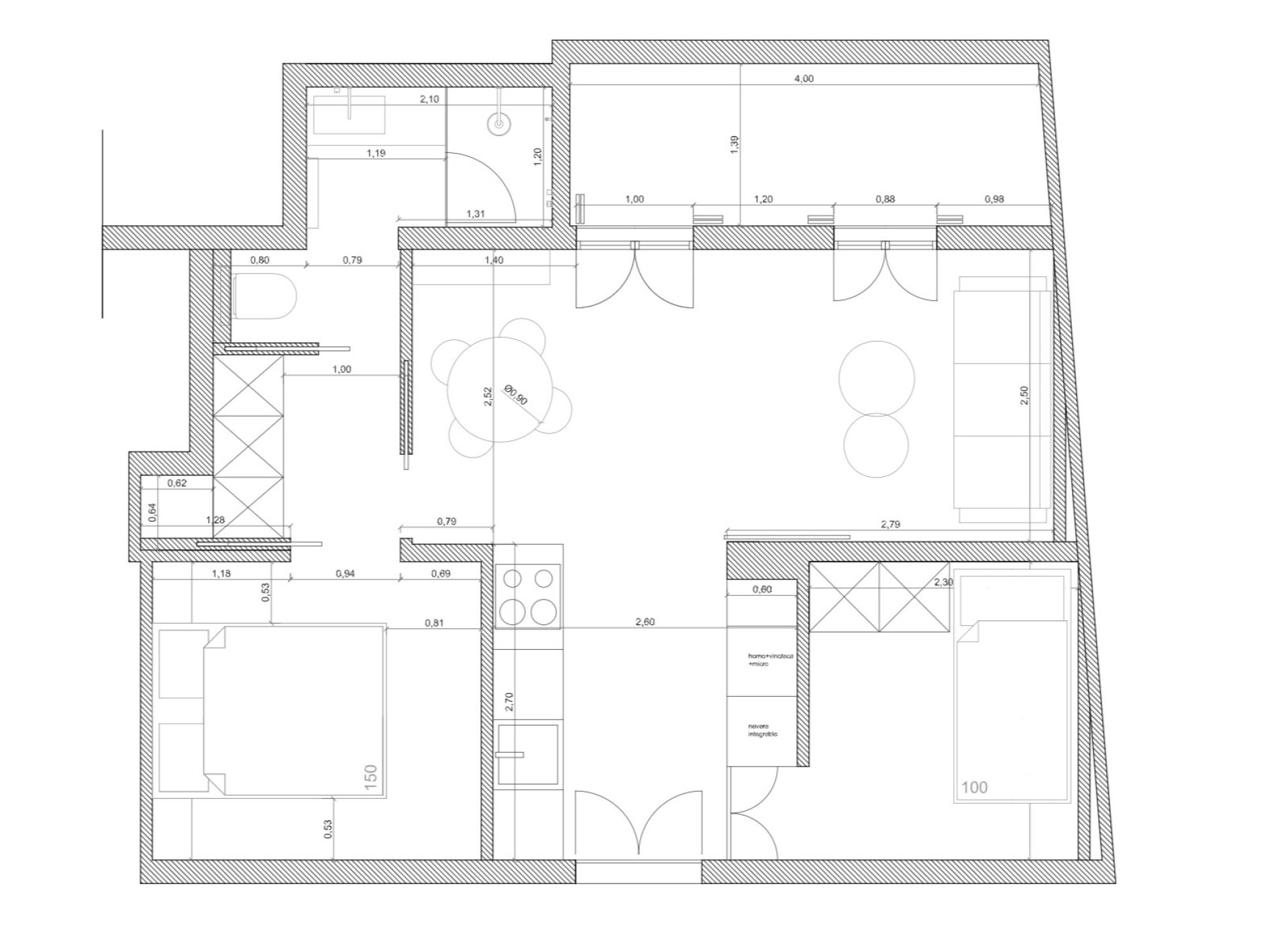
This inviting home offers an interior space of approximately 54 m², smartly distributed across two bedrooms, one bathroom, and a bright open-plan living area with a kitchen. From the living room, you have direct access to a private patio of around 5 m², ideal for relaxing outdoors or enjoying your morning coffee.
Recently renovated to the highest standards, the property includes new plumbing and electrical installations, double-glazed windows, and handcrafted wooden shutters. The entire building has also undergone recent refurbishment, ensuring both comfort and quality.
The apartment offers an impressive ceiling height of nearly 4 meters, a custom-designed kitchen equipped with Bosch appliances and a wine cooler, a Mallorcan stone countertop, and bespoke floor-to-ceiling wardrobes.
This home perfectly balances modern functionality with Mediterranean character, preserving traditional elements such as exposed natural stone walls that add warmth and charm.
The property is just 250 meters from the sea and within walking distance of Palma city centre, shops, cafes, and restaurants. The airport is also easily accessible, making it ideal for both permanent living and holiday use.













RESERVED